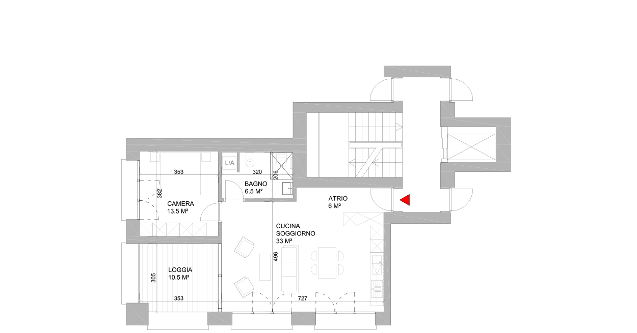
Gli appartamenti, alcuni già predisposti per residenti con problemi motori, sono eccezionalmente moderni e luminosi.
I pavimenti sono rivestiti in gres porcellanato di colore grigio chiaro. Con il medesimo materiale, ma in formati e colori diversi, sono stati rivestiti i pavimenti e le pareti dei bagni. Gli spaziosi bagni sono modernamente arredati con lavandino e sottostante mobiletto, specchio con armadietto, wc e la doccia a filo pavimento ed angolo lava-asciuga.
Le cucine semiaperte sulla zona pranzo dal design moderno e funzionale sono dotate di elettrodomestici di ultima generazione.
Scopri i nostri appartamenti in locazione.
Residenza



























